Ponúkame dostupné bývanie za ceny, ktoré si môžete dovoliť aj Vy. Financovanie cez hypotéku Vám vybavíme, riešime všetky banky.
Okrem aktuálne pripravovaných projektov a projektov vo výstavbe ponúkame aj výstavbu domov presne na mieru. Neváhajte a bývajte!
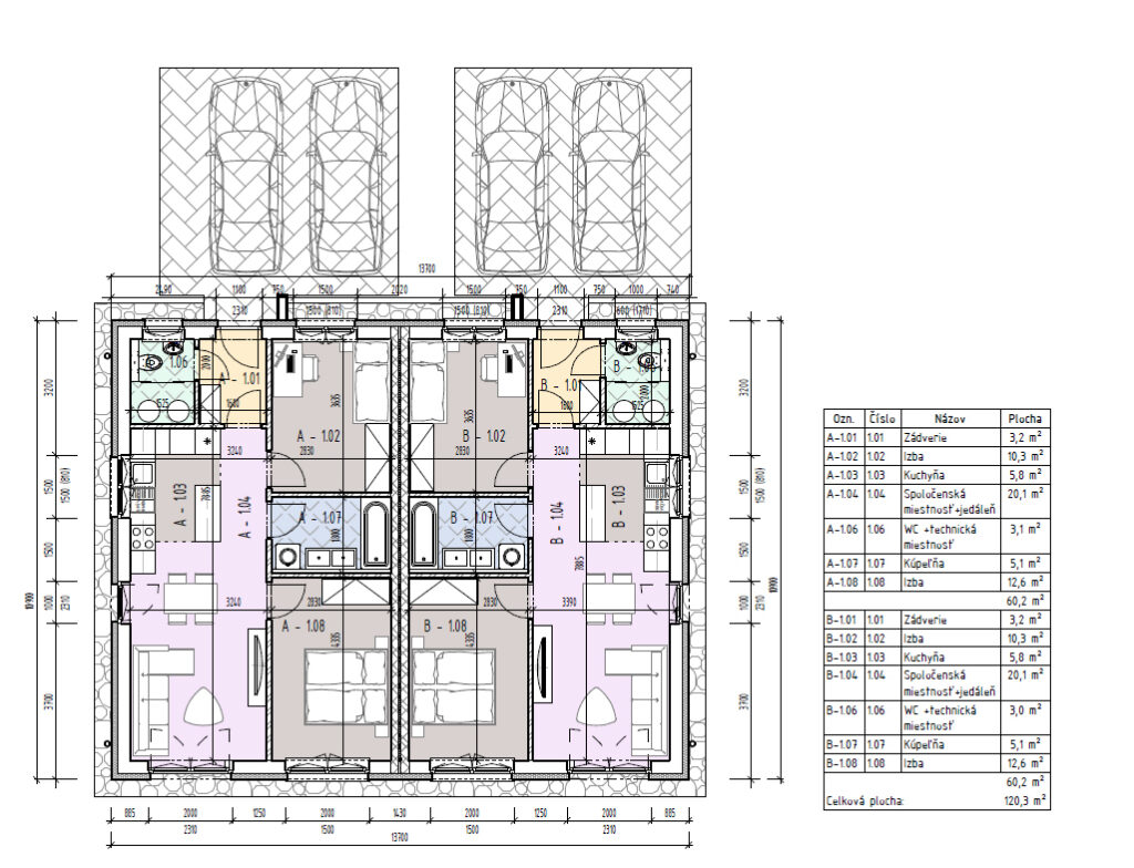
Dvojdomy Miloslavov Alžbetin Dvor
cena od 191.000 Eur

Jedna polovica domu s dvoma bytmi má 3 izby – 60m2 úžitkovej plochy + k tomu ešte vieme dorobiť terasu a oddeľovací múrik medzi terasami, ktorý je už v cene.
Začiatok výstavby 11/2025 – ukončenie výstavby v holodome 05-06/2026.

Pre viac info a dohodnutie stretnutia nás kontaktujte na 0948 326 777
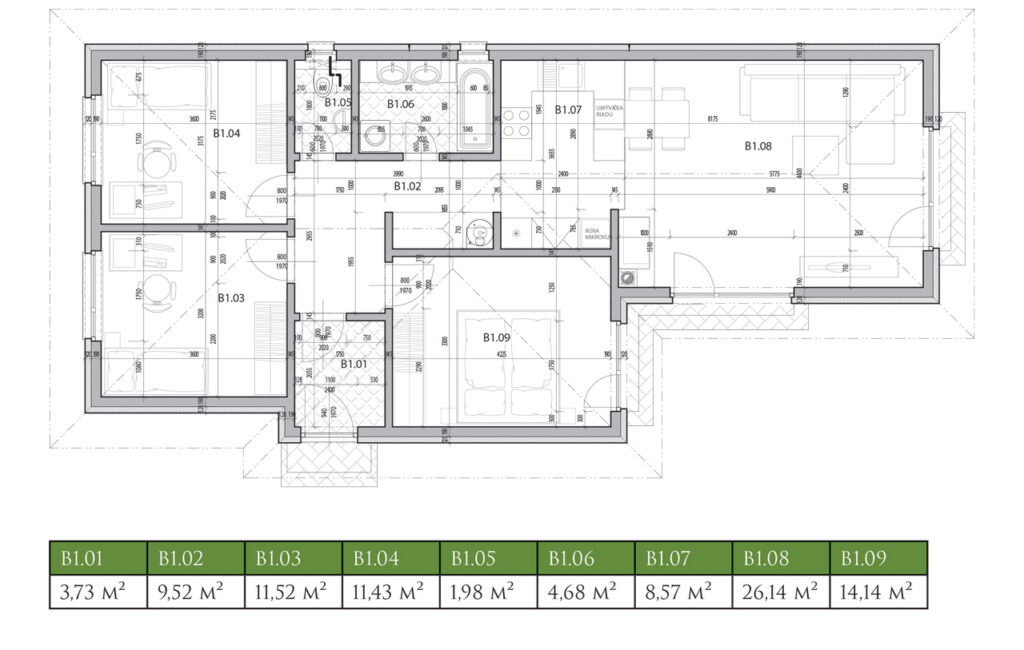
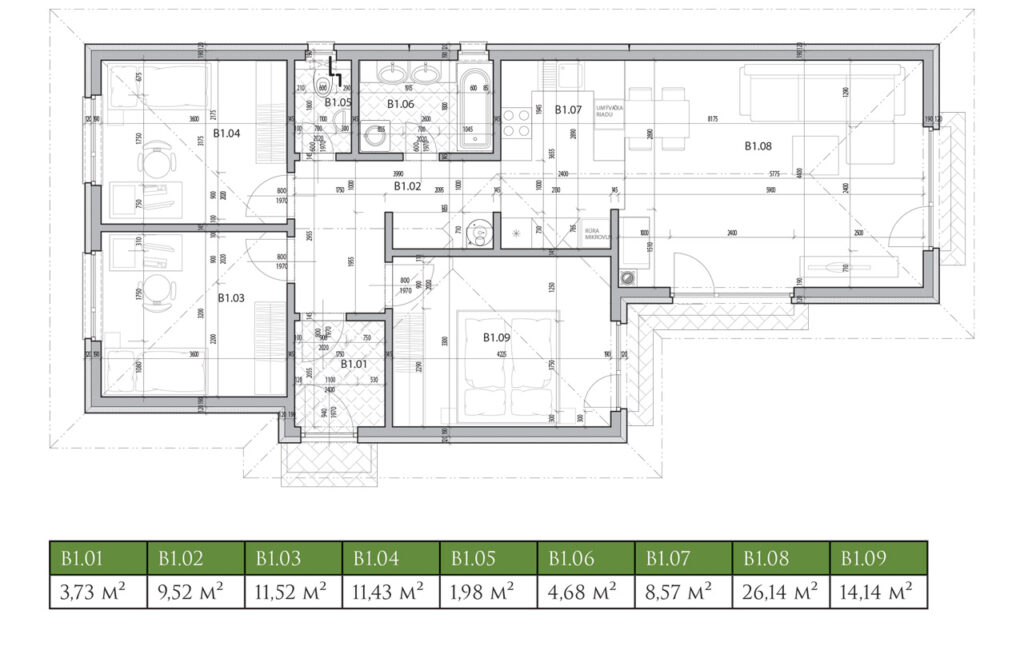
Dvojdomy Kalinkovo I. – ú.p. 92m2:
vypredané
Ponúkame na predaj murované 4izbové kvalitné bungalovy / špeciálne / v podstate oddelené dvojdomy s úžitkovou plochou 91,7m2 a s pozemkom 430m2 v novej ulici vo vyhľadávanej lokalite v smere hneď za Dunajskou Lužnou na začiatku obci Kalinkovo.
Vykurovanie je podlahové – tepelné čerpadlo, okná 6-komorové trojsklo, betónová škridla, predpríprava na krb – komín Schiedel, vypínače/zástrčky – Legrand. Domy budú buď v prevedení holodom + s možnosťou dokončenia aj štandardu – obklady, dlažby, sanita a interiérové dvere. Oplotenie, terasa, zámková dlažba nie je v cene – možnosť dokončiť aj exteriér. Tiež ponúkame možnosť vybaviť domy aj fotovoltickou elektrárňou buď navýšením ceny domu, alebo aj na splátky.
Služby v tesnom okolí Kalinkova:
– približne 3 km je obec Dunajská Lužná – kompletná vybavenosť, lekári, školy, obhody – Billa, nákupné centrum Rovinka City Park ,
– približne 7 km vzdialené mesto Šamorín
– do Bratislavy – Lidl v Podunajských Biskupiciach je to iba 7 km
Nová uica v Kalinkove – chodník, osvetlenie, autobusová zastávka, blízko hrádza, optika od Telecom, IS – voda, kanalizácia a elektrika.
Pôdorys jednej strany dvojdomu / dva prepojené rodinné domy s vnútornou úžitkovou plochou 91,7m2:

Pre viac info a dohodnutie stretnutia nás kontaktujte na 0948 326 777
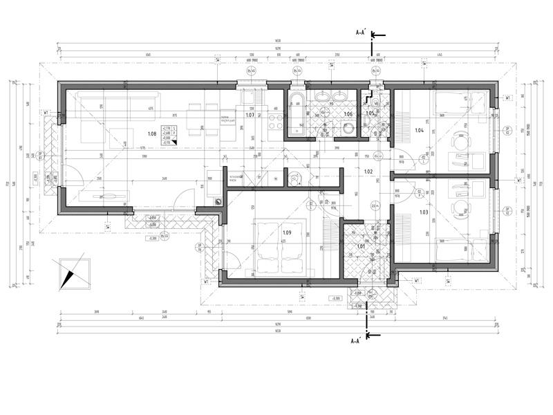
Dvojdomy Tomášov:
AKCIOVÁ cena 270.000 Eur

Cena 270.000 Eur v holodome
AKCIOVÁ CENA – posledný voľný 270.000 Eur v holodome.
/ Cenníková cena v holodome je 275.000 Eur, s tepelným čerpadlom vrátane pozemku./
súkromá ulička priamo v zastavanej časti veľmi obľúbenej obce Tomášov. Iba 4 domy – dva dvojdomy s maximálnym komfortom a súkromím.
4 murované 4izbové kvalitné bungalovy s úžitkovou plochou 91,7m2 a s pozemkom 425m2 v zastavanej časti veľmi obľúbenej a vyhľadávanej obce Tomášov, blízko krásneho kaštieľa.
Vykurovanie je podlahové – tepelné čerpadlo, okná 6-komorové trojsklo, betónová škridla, predpríprava na krb – komín Schiedel, vypínače/zástrčky – Legrand. Domy budú buď v prevedení holodom + s možnosťou dokončenia aj štandardu – obklady, dlažby, sanita a interiérové dvere. Oplotenie, terasa, zámková dlažba nie je v cene – možnosť dokončiť aj exteriér. Tiež ponúkame možnosť vybaviť domy aj fotovoltickou elektrárňou buď navýšením ceny domu, alebo aj na splátky.
Pôdorys jednej strany dvojdomu / dva prepojené rodinné domy s vnútornou úžitkovou plochou 91,7m2:


Pre viac info a dohodnutie stretnutia nás kontaktujte na 0948 326 777
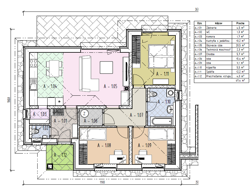
Dvojdomy Kalinkovo II. – ú.p. 87,4m2:
Predpredaj 249.000 Eur

Ponúkame na predaj murované 4izbové kvalitné bungalovy / špeciálne / v podstate oddelené dvojdomy s úžitkovou plochou 87,4m2 vrátane prestrešeného vstupu a s pozemkom 350m2 v novej ulici vo vyhľadávanej lokalite v smere hneď za Dunajskou Lužnou na začiatku obci Kalinkovo.
Vykurovanie je podlahové – tepelné čerpadlo, okná 6-komorové trojsklo, betónová škridla, predpríprava na krb – komín Schiedel, vypínače/zástrčky – Legrand. Domy budú buď v prevedení holodom + s možnosťou dokončenia aj štandardu – obklady, dlažby, sanita a interiérové dvere. Oplotenie, terasa, zámková dlažba nie je v cene – možnosť dokončiť aj exteriér. Tiež ponúkame možnosť vybaviť domy aj fotovoltickou elektrárňou buď navýšením ceny domu, alebo aj na splátky.
Služby v tesnom okolí Kalinkova:
– približne 3 km je obec Dunajská Lužná – kompletná vybavenosť, lekári, školy, obhody – Billa, nákupné centrum Rovinka City Park ,
– približne 7 km vzdialené mesto Šamorín
– do Bratislavy – Lidl v Podunajských Biskupiciach je to iba 7 km
Nová uica v Kalinkove – chodník, osvetlenie, autobusová zastávka, blízko hrádza, optika od Telecom, IS – voda, kanalizácia a elektrika.
Financovanie je možné cez Hypoúver – zabezpečíme vybavenie hypotéky.
Akciová cena bytu v RD s dvomi bytovými jednotkami je 249.000 Eur v holodome
Využite predpredajovú akciu a dohodnite si osobné stretnutie, pre viac info volajte na 0948 326 777, info@chcembyvat.eu, www.eco-domov.sk





















